65 000 €

PLACE DES VOSGES - F1B à vendre

PLACE DES VOSGES - F1B à vendre

6 Boulevard du Recteur Senn 54000 Nancy
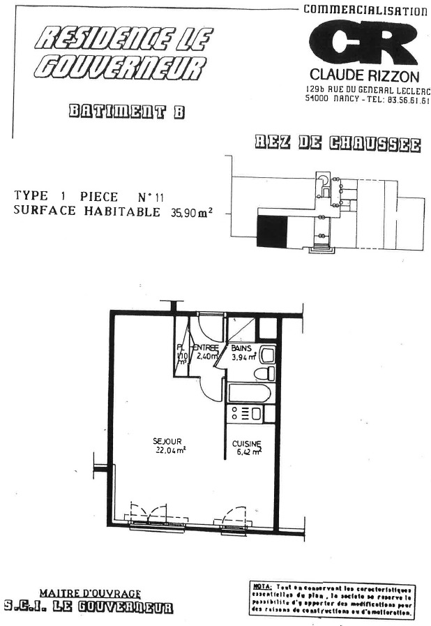
1 pièce 35.9 m2 Exclusivité
Référence : #1239
65 000 €
1 811 € m²

Conditions de vente

65 000 €

Charges immeuble
624 € / an
Taxe foncière
Non renseignée

Honoraires à la charge du vendeur

Informations

1 chambre
Étage : RDC
1 salle d'eau
1 baignoire
1 WC
Bâtiment de : 4 étages
Ascenseur
Copropriété
Construit 1989

Description

Découvrez sans tarder ce charmant F1B de 36 m2, disponible immédiatement, niché dans une résidence entretenue proche du centre ville de Nancy, de l'hôpital central, des petits commerces, de la ligne 2 et des écoles telles que IFSI, sage-femmes, sciences-po, etc..
Vous apprécierez son grand placard dans l'entrée, sa pièce de vie spacieuse, sa kitchenette équipée fonctionnelle, son coin nuit ainsi qu’une salle de bains avec W.C.
Idéal pour les investisseurs, cet appartement représente une opportunité à ne pas manquer.
Contactez-nous dès maintenant pour organiser votre visite selon vos disponibilités !
Mis à jour le 01/12/2025

Relevés techniques

Traversant
Non
Vitrage
Double

DPE : 208
A
B
C
D
E
F
G
GES : 6
A
B
C
D
E
F
G
Diagnostic réalisé le: 28/04/2025

Montant estimé des dépenses annuelles d'énergie pour un usage standard : entre 640 € et 900 € par an.

Production eau chaude
Individuel Électrique

Production chauffage
Individuel Électrique


Les informations sur les risques auxquels ce bien est exposé sont disponibles sur le site Géorisques : www.georisques.gouv.fr

État et prestations

État général
Travaux à prévoir